Portfolio
Energia
Links
Partners
Documenti

attuale.JPG (97953 byte)

Present status of building. The original building was peculiarly "cut" in the past to create the street on the left, after that a second wall was addedclose to an original master wall. The project aim to liberate these two structures and make room for proper stairs and elevator, while creating a scenographic vertical open space.

prog_n.jpg (43501 byte)

External project visualization at night

spaccato.JPG (119083 byte)

This axonometric view illustrates the actual task of the project,
which was to create an accessible connection from the ground floor entrance
to the first floor where is the main space of the shop

The tricky part is to remove the superflous structures between the historical ones
liberating space and thus making breath to the rooms.

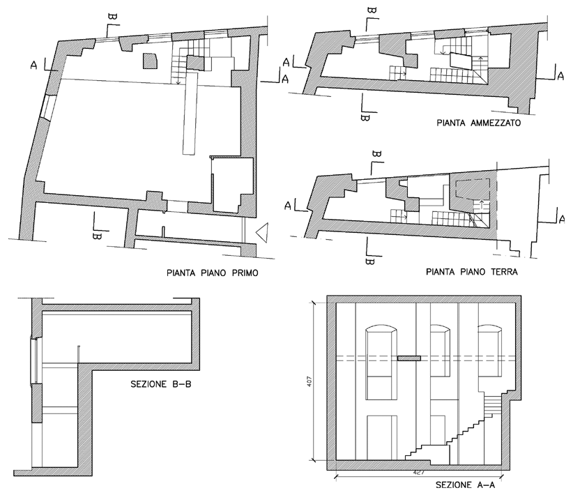
alessandrelli_dwg.gif (128468 byte) Project plans and section
01.jpg (30496 byte) Night view from the street
02.jpg (39321 byte) Model of the "narrow" vertical space for Air and stairs obtained removing all the
non original structures and leaving only the master walls.